Opracował:
Tomasz Zamysłowski
Franz Aufmann
Warszawa, 24.02.2026 r.



Rozkazem z dnia 20 lutego 1939 roku Dowództwo Grupy Armii 1 rozpoczęło prace nad planowaniem i realizacją budowy nowej linii fortyfikacyjnej na Śląsku. Zakładano, że zaawansowanie prac już na jesieni 1939 będzie wystarczające aby powstrzymać na dłuższych czas mniejszymi siłami ewentualne wtargniecie nieprzyjaciela na teren Rzeszy. Nowo powstająca linia fortyfikacji określana była w zachowanych dokumentach jako Umocnienia graniczne Śląska (niem. Grenzbefestigungen Schlesien), natomiast w dotychczasowych opracowaniach dotyczących niemieckich umocnień na Śląsku oraz w sprawozdaniach z terenowych prac badawczych funkcjonowała jako „Pozycja Górnośląska”.
Dowództwo Grupy Armii 1 już 15 lutego 1939 roku, wydało zalecenia dotyczące wyznaczonych celów, usystematyzowania prac i podziału obowiązków między właściwymi służbami nad rozpoznaniem i wytyczeniem przebiegu Umocnień Granicznych Śląska. Główny ciężar prac spoczywał na właściwych komendanturach i sztabach rozpoznawczych.
Zakładano budowę ciągłych przeszkód przeciwpiechotnych na długości głównej linii walki [01] (niem. Hauptkampflinie – H.K.L) o długości 450 km oraz ich wzmocnienie na odcinkach uznanych za taktycznie ważne. Szczególny nacisk położono na zabezpieczenie pozycji przed ewentualny uderzeniem nieprzyjaciel z użyciem broni pancernej. Zaplanowano budowę ciągłej przeszkody przeciwpancernej z wykorzystaniem czechosłowacki jeży, rowów przeciwpancernych i kanałów fortecznych. Ze względów ekonomicznych celowe było oprzeć nowo planowaną pozycję obronną o naturalne przeszkody takie jak lasy i cieki wodne. Ważniejsze szlaki komunikacyjne przecinające pozycje obronną zabezpieczono przy pomocy zapór przeciwpancernych [02]. Całość planowanej pozycji obronnej podzielono na 24 dywizyjne odcinki. Na odcinkach głównych (na tzw. odcinkach ciężkości) o długości 200 km obrona miał się opierać o linię schronów żelbetowych, w celu uzyskania:
– ciągłej zapory ogniowej ckm-ów z obiektów bojowych, pokrywającej ogniem przeszkody,
– szczelnej zapory ogniowej broni przeciwpancernej z izb obiektów bojowych w tych częściach odcinków głównych, w których jest to konieczne,
– niezbędnych punktów obserwacyjnych i stanowisk dowodzenia.
Skuteczną obronę pozycji miała umożliwić sieć telefoniczna. Do prac w sztabach rozpoznawczych nie przydzielono oficerów łączności. Oficerowie łączności Sztabów Saperów Fortecznych wykonywali zlecenia dotyczące planowanej pozycji obronnej w ramach służby w komendanturach fortecznych (niem. Kommendantur der Befestigungen). Istotnym zadaniem było ustalenie przebiegu połączeń poprzecznych [03], wykonywanych w pierwszym etapie prac. Przebieg połączeń poprzecznych determinowany był głównie względami terenowymi i lokalizacją stanowisk ogniowych. Czynny udział oficerów łączności istotny był przy wyznaczaniu stanowisk dowodzenia. Rozbudowę sieci kablowej rozpoczynano równocześnie z budową obiektów bojowych oraz punktów obserwacyjnych.
Obrona pozycji na odcinkach szczególnie ważnych miała bazować na schronach żelbetowych nowo zaprojektowanej serii 100. Po wrześniu 1939 roku budowę obiektów wstrzymano. Na odcinkach szczególnie ważnych dla obrony pozycji wybudowano jedynie 26 nie wypełni ukończonych obiektów i rozpoczęto budowę kilku kolejnych.
Raport komendantury fortyfikacji w Opolu dla odcinka Kielcza [04] określa ilość żelbetowych schronów przewidzianą dla pozycji przez sztab rozpoznawczy, podaje ilość schronów [05] zatwierdzonych do budowy ogółem oraz do rozbudowy w roku 1939 przez dowództwo 1 Armii.

Należy zwrócić uwagę na przyjętą przez Dowództwo Grupy Armii 1 wyjątkowo dużą ilość obiektów ze stanowiskami polowych armat przeciwpancernych w izbach bojowych w porównani do ilości schronów – ukryć dla armaty ppanc. planowanych przez sztab rozpoznawczy. W raporcie zwrócono uwagę na zalety stanowisk ogniowych armat przeciwpancernych w obiektach żelbetowych do ognia bocznego, położonych w pierwszej linii obrony. Armata przeciwpancerna była w każdej chwili gotowa do odparcia niespodziewanego natarcia czołgów nawet pod ostrzałem nieprzyjaciela. W razie potrzeby, tak samo jak ze schronu garażowego, armata może być wytoczona do prowadzenia ognia z pozycji polowej. Uznano również, że w izbie bojowej dla armaty ppanc można prowizorycznie umieścić nawet drugie działo.
W skład obiektów Umocnień Granicznych Śląska weszły dwa typy schronów bojowych ze stanowiskiem 3,7 cm polowej armaty przeciwpancernej z nowo projektowanej serii „100”. Były to obiekty o standardowej konstrukcji o oznaczeniu R 116a i R 116b w klasie odporności Bneu. R 116a to schron bojowy do ognia bocznego z izbą dla polowej armaty przeciwpancernej (niem. 3,7 cm Panzerabwehrkanone – 3,7 cm Pak), izbą dla karabinu maszynowego MG 34, punktem obserwacyjnym w małej kopule oraz ze stanowiskiem obrony wejścia i zapola. Oznaczenie R 116b przypisane było obiektowi o tej samej konfiguracji izb, ale ze stanowiskiem obserwacyjnym w pomieszczeniu z peryskopem, zamiast stanowiska w kopule obserwacyjnej. Obie odmiany schronów, w zależności od wymogów pola walki, mogły występować w wersji lustrzanego odbicia.

Po prawej stronie projekt schronu R 116 zgodnie z załącznikiem do wytycznych dla form konstrukcyjnych fortyfikacji stałej z grudnia 1938 roku: 1 izba dla ckm-u za płytą 6 P7, 2. izba bojowa dla 3,7 cm armaty ppanc. na obrotowej platformie za płytą 485 P2, 3. izba ze stanowiskiem obrony wejścia i zapola, 4. pomieszczenie obserwatora z peryskopem lub w małej kopule obserwacyjnej 90 P9, 5. magazyn amunicji dla armaty ppanc, 6. magazyn amunicji dla broni maszynowej, 7. korytarz komunikacyjny, 8. magazyn żywności, 9. izba załogi, 10. śluza przeciwgazowa, 11. zewnętrzny korytarz wejściowy z miejscem na odkażanie ubrania i składowania suchych ustępów.
Pancerze w obiektach Regelbau R 116





Stanowisko armaty przeciwpancernej, w projekcie schronu w załączniku do dokumentu z 1938 roku zatytułowanego „Wytyczne dla form konstrukcyjnych fortyfikacji stałej” [o6], chronione było płytą 485 P2 w klasie odporności B o grubości pancerza równej 20 cm. W płycie wykonano strzelnicę na lufę armaty przeciwpancernej. Lufa armaty wysunięta była na zewnątrz izby. Po jej lewej stronie wykonano otwór pozwalający na prowadzenie ognia przy pomocy celownika optycznego. Wąską szczelinę, przewidzianą do obserwacji sektora ostrzału, wykonano w płycie po prawej stronie centralnie ustawionego stanowiska. Otwory w płycie zabezpieczały dwie zasuwy, przesuwane pomiędzy poziomo zamocowanymi prowadnicami. Armata spoczywała na obrotowej platformie [07], która zapewniała szybką zmianę kierunku ognia. Obrót platformy umożliwiał trzpień osadzony pionowo przy płycie. Tył platformy poruszał się po wyprofilowanej w posadzce bieżni. W przypadku wycofania armaty konstrukcja platformy umożliwiała użycie również ciężkiego karabinu maszynowego. Wjazd do izby zabezpieczały stalowe, dwudzielne drzwi typu 447 P01 z otwieranym lukiem.
Stanowisko karabinu maszynowego MG 34 na podstawie fortecznej osłaniała 20 cm płyta 6 P7. W standardowej wersji schronu R 116a przywidziano osadzenie małej kopuły obserwacyjnej 90 P9 w klasie B1 odporności w stropie obiektu. Opracowano również metodę pozwalającej na osadzenie tej małej kopuły w stropie obiektu z opóźnieniem – po jego wykonaniu.
Stanowisko obrony wejścia i zapola schronu zabezpieczono przy pomocy stalowej płyty 483 P2. Stanowisko obrony bezpośredniej w izbie załogi osłonięto stalową płytą typu 48 P8, umożliwiającą bezpośrednią obronę wejścia zabezpieczonego drzwiami kratowymi 491 P2.
Wejście do obiektu, izby bojowej armaty przeciwpancernej i jej składu amunicyjnego, ciężkiego karabinu maszynowego na podstawie fortecznej i pomieszczenia obserwacyjnego zabezpieczał jeden typ drzwi. Zastosowano dwudzielne drzwi stalowe typu 434 P01 o grubości 3 cm. Przy pomocy gazoszczelnych drzwi typu 59 P8 zabezpieczono wejście do pomieszczenia ze stanowiskiem obrony wejścia i zapola oraz do magazynu dla amunicji karabinowej. Gazoszczelne drzwi 19 P7 przewidziano w wejściu do magazynu żywności oraz korytarza rozdzielającego część bojową od socjalnej. Wyjątkowo praktycznym rozwiązaniem ze względu na wykorzystanie powierzchni użytkowej było zastosowanie przesuwnych drzwi 26 P8 pomiędzy śluzą przeciwgazową a izbą załogi.
Zgodnie z zasadami przyjętymi w niemieckiej fortyfikacji obiekt o określonej klasie odporności mógł być wyposażony w elementy pancerne w tej samej klasie lub w określonych przypadkach w bezpośrednio niższej. Dla przykładu w obiektach klasy B obsadzane były kopuły pancerne dla obserwatorów artylerii lub piechoty w klasie B i B1. W izbach do ognia bocznego, czyli nie narażonych na bezpośredni, frontalny ostrzał wroga, stosowano płyty pancerne wykonane w tej samej klasie odporności (B) lub w niższej (B1). Wspomnianej zasadzie nie podlegały płyty pancerne osłaniające stanowiska bojowe do ognia czołowego. Dlatego też regulaminowy schron R 116, prowadzący ogień boczny z obu izb, mógł posiadać płytę 7 P7 w klasie odporności B1 do osłony stanowiska bojowego ckm i 413 P9 w klasie odporności B1 dla stanowiska armaty przeciwpancernej.
Pancerze w obiektach Regelbau R 116 Umocnień Granicznych Śląska
Niestabilność dostaw podzespołów wyposażenia dla planowanej budowy obiektów fortyfikacji Umocnień Granicznych Śląska wymusiła zastosowanie zastępczych rozwiązań. Podjęto decyzję o możliwości wykorzystania czechosłowackich elementów wyposażenia pancernego z zakładowych składów lub pozyskanych z już wybudowanych obiektów [08]. W przypadku regulaminowych schronów R 116 zdecydowano się zastosować czechosłowackie pancerze do osłony stanowiska ciężkiego karabinu maszynowego do ognia bocznego, stanowiska obrony wejścia i zapola oraz stanowiska obrony wejścia.
W czechosłowackiej fortyfikacji stanowisko o oznaczeniu M/CE do ognia bocznego przeznaczone było dla dwóch sprzężonych 7,92 mm karabinów maszynowych wzór 37 (ZB vz. 37) na podstawie fortecznej. Istniało 9 wersji tego stanowiska stosowanych w zależności od ukształtowania terenu w sektorze ognia, od wielkości wzniosu lub spadku terenu. Karabiny maszynowe o lufach chłodzonych powietrzem prowadziły ogień naprzemienny. Łuski z wystrzelonych nabojów odprowadzane były przy pomocy zrzutni na zewnątrz schronu do rowu diamentowego, wykonanego poniżej strzelnicy. Dla śląskich R 116 adaptowano kompletne czechosłowackie stanowisko bojowe. Staliwny pancerz, osłaniający stanowisko, otrzymał niemieckie oznaczenie 790 P4 a karabiny maszynowe s.MG 37(t).
Do osłony stanowiska obrony wejścia i zapola w schronach R 116 zdecydowano się zastosować najbardziej dostępny czechosłowacki pancerz. Został opracowany dla czechosłowackich lekkich obiektów, popularnie nazywanymi „Ropikami”. Stosowano trzy różne typy pancerzy dla tego stanowiska, w zależności od producenta. Uzbrojenie stanowiska w czechosłowackiej fortyfikacji stanowił ręczny karabin maszynowy ZB vz. 26 lub ZB vz. 27. Oba typy broni zasilane były standardowo nabojami 7,92 x 57 mm Mauser co ułatwiało przyjecie na uzbrojenie i eksploatację tej broni w niemieckich fortyfikacjach. Pancerz otrzymał niemiecki oznaczenie 793 P4.
Czechosłowacką osłonę strzelnicy obrony wejścia (Fot. 06, Rys. 04), o wyjątkowo dobrze przemyślanej konstrukcji, wybrano dla wewnętrznego stanowiska obrony wejścia w zamian standardowej 48 P8. Przeznaczona była dla ręcznego karabinu maszynowego ZB vz. 26. Nie otrzymała niemieckiego oznaczenia przynależnego standardowym konstrukcjom wyposażenia obiektów fortyfikacyjnych. Brak dostępu do właściwej dokumentacji przez nadzór techniczny na placu budowy i całkowity brak znajomości konstrukcji czechosłowackiego wyposażenia spowodował w kilku przypadkach niewłaściwe, obrócone o 180 stopni (względem osi strzelnicy), osadzenie pancerza w ścianie. W takim ustawieniu zamkniecie strzelnicy, które miało samoczynnie opadać po naciśnięciu dźwigni ryglującej i przysłaniać otwór strzelnicy, pozostawało nadal w dolnym położeniu.
Całkowitą nowością w niemieckiej fortyfikacji było zastosowanie zrzutni granatów. Trzy obiekty R 116 o lokalizacji w Biskupicach, Bojkowie i Miedarach otrzymały czechosłowackie zrzutnie granatów [09]. Rozwiązanie to było z powodzeniem stosowane we francuskiej, czechosłowackiej i polskiej fortyfikacji. Pozwalało na skuteczną obronę bezpośredniego otoczenia ścian zewnętrznych obiektu w martwych polach ostrzału. W tym przypadku również brak opracowanej dokumentacji i znajomości osadzanego wyposażenia przez nadzór techniczny ekip budowlanych spowodował niewłaściwe ustawienie pancerza w procesie betonowania. Taki przypadek zaistniał w Zbrosławicach w obiekcie R 107 a. Czechosłowacka zrzutnia granatów została wyposażona w samo ryglującą się kalpę w pozycji „zamknięte”. Po wrzuceniu granatu w rurę zrzutni, klapa opadała po własnym ciężarem i zamykała otwór wlotowy zrzutni. Takie rozwiązanie chroniło obsługującego ją żołnierza przed obrażeniami w wyniku przedwczesnej eksplozji granatu. Działało jednak tylko w przypadku właściwego osadzenia zrzutni w ścianie schronu.
W obiektach zastosowano również lekkie drzwi gazoszczelne produkcji czechosłowackiej. Cechą charakterystyczną tych drzwi było mocowanie do ościeżnicy na trzech zawiasach. W żadnym ze schronów wchodzących w skład Umocnień Granicznych Śląska nie przetrwały do obecnych czasów. Zachowały się jedynie ich ościeżnice.
Zdecydowano się na wykorzystanie do własnych celów czechosłowackich drzwi kratowych zabezpieczających wejście do obiektu. Ciekawostką może być fakt, że ten typ drzwi budził też zainteresowanie polskich saperów. Czechosłowackie drzwi kratowe zastosowano w polskich obiektach. W dwóch schronach zachowały się do obecnych czasów.
Nie podjęto jednak decyzji o adaptowaniu czechosłowackiego, fortecznego stanowiska 47 mm armaty przeciwpancernej w regulaminowych schronach typu R 116 na Umocnieniach Granicznych Śląska. Dopiero w późniejszym okresie wykorzystano je w budowanych obiektach Wału Atlantyckiego. Czechosłowacka armata przeciwpancerna otrzymała niemieckie określenie 4,7 cm Panzerabwehrkanone Kasematte 36(t).

Płyty chroniące stanowisko 3,7 cm armaty przeciwpancernej w izbie obiektów fortyfikacji stałej
W ramach rozbudowy niemieckich fortyfikacji przewidziano kilka typów schronów z izbą bojową dla polowej 3,7 cm armaty przeciwpancernej (niem. 3,7 cm Panzerabwehrkanone – 3,7 cm Pak). Podobnie jak w przypadku stosowanego już rozwiązania w izbach bojowych broni maszynowej założono, że stanowisko armaty przeciwpancernej w tak zwanej kazamacie będzie osłonięte stalową płytą. W tym celu opracowano szereg płyt dla obiektów wznoszonych w klasach C, B1 i B. Ze względu taktycznych obiekty te można było podzielić na dwie grupy:
Grupa 1 – obiekty o sektorze ognia 30°:
– ze stalową płytą 474 P2 o wymiarach 360 x 260 x 6 (?) cm a osłaniającą stanowisko bojowe w obiektach o klasie odporności C,
– ze stalową płytą 473 P2 o wymiarach 380 x 270 x 10 cm a osłaniającą stanowisko bojowe w obiektach o klasie odporności B1,
– ze stalową płytą 480 P2 o wymiarach 420 x 295 x 20 cm a osłaniającą stanowisko bojowe w obiektach o klasie odporności B.
Grupa 2 – obiekty o sektorze ognia 60°:
– ze stalową płytą 421 P01 o wymiarach 390 x 260 x 6 cm a osłaniającą stanowisko bojowe w obiektach o klasie odporności C,
– ze stalową płytą 413 P9 o wymiarach 410 x 270 x 10 cm a osłaniające stanowisko bojowe, w obiektach o klasie odporności B1,
– ze stalową płytą 485 P2 o wymiarach 450 x 307 x 20 cm a osłaniającą stanowisko bojowe w obiektach o klasie odporności B.
Izby bojowe dla 3,7 cm armaty przeciwpancernej, w zależności od wielkości sektora ognia, posiadały szerokość 2,60 m dla sektora ognia 30° i 2,90 m dla sektora ognia 60°. Armata przeciwpancerna w izbie bojowej spoczywała na obrotowej platformie. Demontaż kół ułatwiał obsadzie dostęp do armaty. Dla nowo opracowanych od 1938 roku schronów serii „100” w klasie odporności Bneu przewidziano zastosowanie płyt w klasie B1 lub B.
Przygotowania do wojny oraz dające się odczuć braki materiałowe spowodowały opóźnienia w dostawach zmówionych pancerzy. Budowa betonowych schronów postępowała szybciej niż produkcja pancerzy. W celu uniknięcia opóźnienia przy wznoszeniu nowych obiektów fortyfikacji stałej podjęto prace nad zmianą metody osadzania pancerzy. Prace nad rozwiązaniem problemu ukierunkowano na trzy cele . Pierwszym z nich było takie zmodyfikowanie żelbetowej konstrukcji schronu aby umożliwiała późniejszy montaż deficytowych elementów pancernych przypisany danemu typowi obiektu.
Drugi cel zapoczątkowanych prac dotyczył wykorzystania płyt o sektorze ognia 30°, na które zmalało zapotrzebowanie ze względu na przyjecie jako standardowego sektora ognia 60° w docelowych konstrukcjach nowej serii 100. Podjęto decyzję o przeprowadzeniu takiej modyfikacji tych płyt aby umożliwiały prowadzenie ognia przez 3,7 cm armatę przeciwpancerną w sektorze wynoszącym 60° [10]. Wymiary gabarytowe płyt podczas modyfikacji nie ulegały zmianom, co wymagało korekty szerokości izby bojowej na etapie wznoszenia obiektu.
Ostatnim z wyznaczonych celów pod względem pilności i najłatwiejszym do zrealizowania było łączenie płyt w pakiety. Rozwiązanie to pozwalało na zastosowanie dwóch płyt o klasie odporności C w zamian jednej płyty o klasie odporności B1 lub dwóch płyt o klasie odporności B1 zamiast jednej płyty o klasie odporności B. Od strony izby ustawiano płytę standardową. Drugą od strony przedpola była tego samego typu płyta, ale poddana modyfikacji dla utrzymania identycznego sektora ognia co poprzednia.
Płyty o sektorze ognia 30°, poddane modyfikacji, otrzymały nowe oznaczenia.
Zmodyfikowane płyty:
– 474 P2 otrzymują nowe oznaczenie – 737 P3 (klasa odporności C) o wymiarach 360 x 260 x 6 (?) cm,
– 473 P2 otrzymują nowe oznaczenie – 736 P3 (klasa odporności B1) o wymiarach 380 x 270 x 10 cm,
– 480 P2 otrzymują nowe oznaczenie – 738 P3 (klasa odporności B) o wymiarach 420 x 295 x 20 cm.

Nowa metoda opóźnionego montażu płyt chroniących stanowisko bojowe

Płyty, osłaniające stanowiska broni maszynowej lub armat przeciwpancernych, w obiektach wznoszonych jeszcze do końca 1938 roku mocowane były do żelbetowej konstrukcji schronu za pomocą kotw [11]. Lico płyty ze strzelnicą pokrywało się z płaszczyzną zewnętrznej ściany obiektu. Wprowadzenie nowej metody osadzania płyt ułatwiła konstrukcja nowo wznoszonych obiektów serii 100. Płyta w tych obiektach została cofnięta w głąb bryły schronu i osadzana po wewnętrznej stronie ściany. To rozwiązanie umożliwiało wykonanie podczas budowy obiektu pionowej szczeliny w przewidziany miejscu dla płyty chroniącej stanowisko bojowe. Zgodnie z wytycznymi dotyczącymi późniejszego montażu płyt [12] szczelina zaczynała się na powierzchni zewnętrznej stropu i kończyła się poniżej posadzki izby. Szczelina powinna posiadać szerokość i grubość o 15 cm większą niż odpowiadające wymiary płyty. Zakończenie szczeliny znajdowało się 50 cm poniżej posadzki izby. W tak wykonaną szczelinę można było wsunąć płytę w momencie jej dostarczenia. Płyty przeznaczone do późniejszego montażu posiadały gwintowane otwory do wkręcania uchwytów transportowych. Istotne było takie ustawienie płyty w szczelinie montażowej aby luz pomiędzy płytą a bocznymi powierzchniami szczeliny był identyczny. W takim położeniu płyta mogła zostać ze wszystkich stron szczelnie wypełniona betonem.
Tego typu rozwiązanie zastosowano dla stanowiska 3,7 cm armaty przeciwpancernej w izbie bojowej 4 schronów Umocnień Granicznych Śląska. Do tej grupy należy R 116b nr 2 w Pilchowicach, R 116b nr 4 w Nieborowicach, R 116a nr 5 w Bojkowie i R 116a nr 10 w Zabrzu-Zaborzu. W R 116b nr 4 w Nieborowicach ostała wykonana szczelina o szerokości 470 x 30 cm. Pozwalała na osadzenie stalowej płyty o wymiarach 410 x 270 x 10 cm typu 413 P9 o klasie odporności B1 na ostrzał. Zalecaną grubość szczeliny z 25 cm zwiększono do 30 cm. Prace wstrzymano na etapie wykonywania posadzki przy zachowaniu wymaganej wysokości izby wynoszącej rzędu 190 cm. Nie wykonano cokołu i wyprofilowanej bieżni obrotowej platformy armaty przeciwpancernej. Aktualny stan izby schronu R 116b w Nieborowicach prezentuje fot. o9.
Metoda opóźnionego montażu płyt chroniących stanowisko bojowe nie była stosowana wyłącznie na terenie Umocnień Granicznych Śląska. Problem opóźnionych dostaw płyt dotyczył również innych regionów III Rzeszy. Badania terenowe potwierdziły zastosowanie wspomnianej metody na Pozycji Olsztyneckiej (niem. Hohenstein-Stellung) dla schronów bojowych dla 3,7 cm polowej armaty przeciwpancernej i ciężkiego karabinu maszynowego [13] (niem. Pak und MG-Schartenstand). Zadaniem tych obiektów było ryglowanie szlaków komunikacyjnych. Ze względu na specyfikę prowadzonego ognia zaporowego izba bojowa dla armaty przeciwpancernej chroniona była przez płytę stalową 473 P2 o 30° niesymetrycznym sektorze ostrzału..
.
Modyfikacje metody opóźnionego montażu płyt chroniących stanowisko bojowe 3,7 cm armaty przeciwpancernej



W nowo zaprojektowanych obiektach serii 100, a wznoszonych od 1939 roku, przewidziano dla 3,7 cm armaty przeciwpancernej sektor ostrzału 60°. Zapotrzebowanie na płyty chroniące stanowisko armaty przeciwpancernej o sektorze ostrzału 30° znacznie obniżyło się a płyty i platformy obrotowe zaczęły zalegać początkowo na składach saperskich a późnej w magazynach producentów. Nie przeprowadzono złomowania niewykorzystanych płyt.
W przypadku dostarczonego już wyposażenia zobowiązano służby do zgłoszenia w Inspektoracie Fortyfikacji:
– ilości dostarczonych płyt o sektorze ostrzału 30° z obrotowymi platformami,
– ilości nie zgłoszonych płyt do modernizacji z już dostarczonych,
– czy istnieje dodatkowe zapotrzebowanie na płyty strzelnicze 30°.
Modernizacja osadzonych płyt nie była już możliwa. Opracowana metoda mogła być zastosowana w przypadku jeszcze nie dostarczonych płyt o sektorze ostrzału 30° oraz przynależnym im obrotowym platformom dla 3,7 cm armaty przeciwpancernej. Po przeprowadzonych próbach zmodyfikowanych płyt typu 473 P2 o klasie B1 odporności uznano opracowaną metodę za spełniającą postawione wymagania. Po modyfikacji płyta zachowała swoje wymiary gabarytowe, zwiększony do 60 stopni sektor ostrzału przy kątach podniesienia lufy wynoszących od +5° do -10°. Taka płyta otrzymała nowe oznaczenie 736 P3. Jej zastosowanie wymagało jednak wprowadzenia zmian w izbie dla armaty przeciwpancernej, gdyż standardowa szerokość izby wynosiła 290 cm. Płyta 736 P3 ze względu na swoje wymiary 380 x 270 x 10 cm wymagała izby o szerokości 260 cm. W celu ułatwienia przeprowadzenia procesu osadzania płyt opracowano dla służb saperskich odpowiednie wytyczne [14]. Opisywana metoda została wprowadzona w 5 obiektach Umocnień Granicznych Śląska. Do nich należy R 116a nr 14 w Zabrzu-Biskupicach, R116b nr 17 w Stolarzowicach, dwa schrony R 116a nr 19 i 20 w Zbrosławicach oraz R 116a nr 26 w Miedarach.
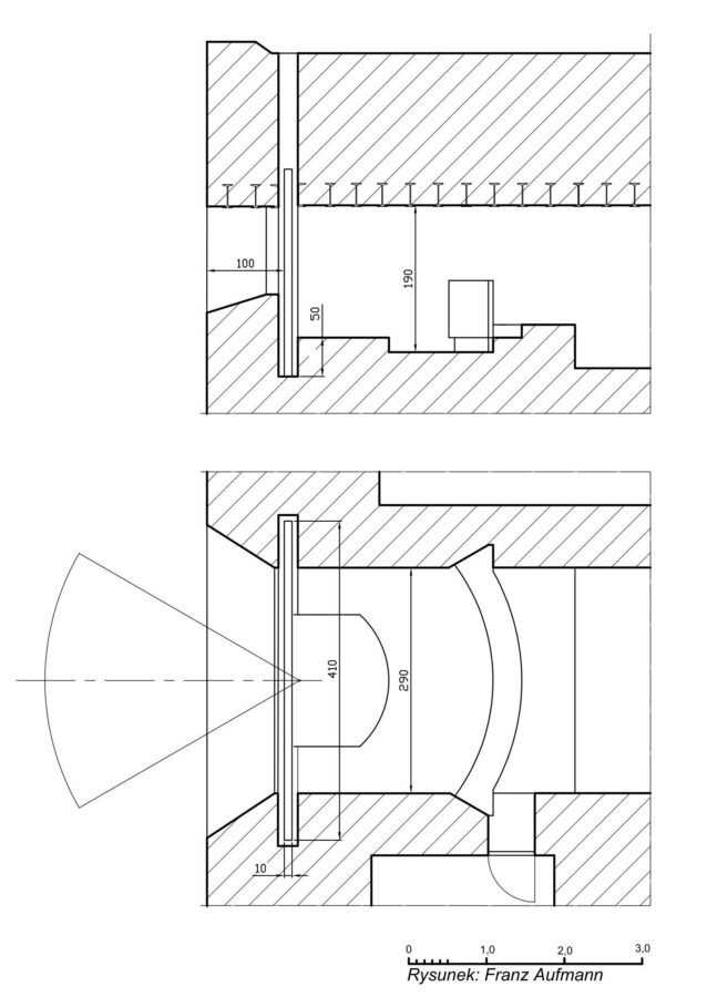
Dobrym przykładem zastosowania tej metody jest izba bojowa schronu typu R 116 w Miedarach. Zaprojektowane zmiany prezentuje rys. 03. Przy szczelinie montażowej na płytę wykonano przewężenie izby. W tym miejscu szerokość pomieszczenia zmalała z 290 do 260 cm. Głębokość szczeliny na płytę, mierzona prostopadle do prawej ściany została wykonana na 68 cm a po lewej stronie na 97 cm. Całkowita szerokość szczeliny wyniosła 425 cm. Umożliwiała prawidłowe osadzenie zmodyfikowanej płyty o wymiarach 380 x 270 x 10 typu 736 P3 o 60° sektorze ognia jak również pierwotnie przeznaczonej dla tego obiektu płyty o wymiarach 410 x 270 x 10 typu 413 P9. Grubość szczeliny, podobnie jak w obiekcie R 116 w Nieborowicach wynosiła 30 cm i była większa od zalecanej o 5 cm. Wykonano przy szczelinie na płytę żelbetowy podest na bieżnię z trzpieniem dla obrotowej platformy 3,7 cm armaty przeciwpancernej. Wyprofilowano również miejsce na bieżnię dla tylnej części platformy. Maksymalna wysokość izby w części bojowej obiektu wyniosła 190 cm.
Ze względu brak dostępu do właściwych materiałów źródłowych nie ustalono zastosowanego rozwiązania w dwóch obiektach Umocnień Granicznych Śląska. Do grupy tych schronów należy R 116a nr 7 oraz nr 9 w Zabrzu-Zaborzu. Pierwszy z nich został za zasypany a drugi rozebrany w latach osiemdziesiątych zeszłego wieku.
Zestawienie schronów z ich numeracją w tym R 116 Umocnień Granicznych Śląska
Numeracja obiektów i ich lokalizacja zgodnie mapą z 1944 roku [15]:
Lokalizacja, okolice Bilchengrund O/S [16] (Pilchowice)
Schron Nr. 1 – Regelbau Rote 97
Schron Nr. 2 – Reguelbau 116a
Lokalizacja, okolice Neubersdorf O/S (Nieborowice)
Schron Nr. 3 – Regelbau Rote 97
Schron Nr. 4 – Regelbau 116a
Lokalizacja, okolice Schönwald O/S (Bojków)
Schron Nr. 5 – Regelbau 116a
Schron Nr. 6 – Regelbau Rote 97
Lokalizacja, okolice Hindenburg O/S (Zabrze-Zaborze)
Schron Nr. 7 – Regelbau Rote 97 (schron całkowicie zasypany w nasypie podczas rozbudowy linii kolejowej w latach osiemdziesiątych/dziewięćdziesiątych zeszłego wieku)
Schron Nr. 8 – Regelbau Rote 97
Schron Nr. 9 – Regelbau 116a (schron zburzony w latach osiemdziesiątych/dziewięćdziesiątych zeszłego wieku)
Schron Nr. 10 – Regelbau 116a
Schron Nr. 11 – Regelbau Rote 97
Schron Nr. 12 – Regelbau 116a (obiekt zasypany)
Lokalizacja, okolice Hindenburg O/S -Nordost (Zabrze – Biskupice)
Schron Nr. 13 – Regelbau Rote 97
Schron Nr. 14 – Reguelbau 116a
Lokalizacja, okolice Beuthen O/S -Roßberg (Bytom-Rozbark)
Schron Nr. 15 – Regelbau 111a (obiekt zasypany)
Schron Nr. 16 – Regelbau Rote 97 (obiekt zasypany)
Lokalizacja, okolice Stillersfeld O/S (Stolarzowice)
Schron Nr. 17 – Regelbau 116b
Lokalizacja, okolice Dramtal O/S (Zbrosławice)
Schron Nr. 18 – Regelbau 106a
Schron Nr. 19 – Regelbau 116a
Schron Nr. 20 – Regelbau 116a
Schron Nr. 21 – Regelbau 107a
Schron Nr. 22 – Regelbau 111a
Schron Nr. 23 – Regelbau 111a
Schron Nr. 24 – Regelbau Rote 97
Schron Nr. 25 – Regelbau 111a
Lokalizacja okolice Immenwald O/S (Miedary)
Schron Nr. 26 – Regelbau 116a
Autorzy opracowania składają podziękowania
panu Maciejowi Wszelakiemu za udostępnienie
rysunków schronów R 116 wzniesionych w ramach
Umocnień Granicznych Śląska.
Przypisy:
[01] – Główna Linia Walki (niem. Hauptkampflinie – HKL) – Przednia krawędź obrony, linia, której atak nieprzyjaciela ma się załamać.
[02] – Przykładowy opis zapory przeciwpancernej znajduje się w opracowaniu pt. Zapora przeciwpancerna – Trägersperren (Einsteckssperre) w Pilchowicach.
[03] – Linia poprzeczna – często nazywana telefoniczną rokadą tyłową lub linią magistralną. Przebiegała na tyłach, równolegle do pozycji obronnej, łącząc jej skrajne odcinki. Budowana była w oddaleniu od 1 do 3 km w stosunku do podstawowej linii obronnej opartej na fortyfikacji stałej. Składała się z podziemnych komór kablowych połączonych pomiędzy sobą podziemną siecią fortecznych kabli telefonicznych. Komory kablowe stanowiły również punkty dostępowe, przy których można było zakładać improwizowane ośrodki dowodzenia dla obszarów obronnych w jej zasięgu. Poszczególne komory kablowe tej linii dla odróżnienia i usystematyzowania oznaczano dużymi literami alfabetu od A do Z. Zgodnie z opracowaniem: Niemiecka, forteczna łączność telefoniczna. Część 1, Niemiecka, forteczna łączność telefoniczna. Część 2
[04] – CAMO 500 12464 52 0091, Erkundungsbericht Abschnitt Keilerswalde. 24. 07. 1939 r.
[05] – Abschn. Keilerswalde -25 km odcinek Kielcza. Linia obrony oparta o rzekę Małą Panew zabezpieczająca przed atak ze strony tz. Klina Lublinieckiego
[06] – BAMA, RH 12-5/56 0901, Richtlinien für die Bauformen der standigen Laddesbefestigung, 13.12.1938 r.
[07] – Opis stanowiska znajduje się w opracowaniu pt. Stanowisko bojowe 3,7 cm armaty przeciwpancernej Pak za płytą stalową 473 P2.
[08] – Problem wykorzystania czechosłowackich kopuł poruszono w opracowaniu Śląskie Panzerwerki – Regelbau Rote 97, Część II,
[09] – Opis przedstawiono w opracowaniu Zrzutnia ręcznych granatów w czechosłowackiej fortyfikacji.
[10] – BAMA, RH 12-20/79 0078, Bestimmungen über die Verwendung der von 30° auf 60° abgeänderten Pakschartenplatten. Anlage zu In Fest III Nr. 3424/39 geh. 20.05.1939 r. Berlin.
[11] – Sposób mocowania opisano w opracowaniu pt. Kotwa – element mocujący płytę stalową osłaniającą stanowisko ciężkiego karabinu maszynowego na podstawie fortecznej.
[12] – BAMA, RH 12-20/80 0042, Richtlinien für den nachträglichen Einbau von Schartenplatten. Anlage zu In Fest III Nr. 2730/39 geh . 13.05.1939 r. Berlin.
[13] – Wzniesiono 11 schronów bojowych w tym 10 schronów według tego samego projektu i jeden w pobliżu miejscowości Wikno (Sp. 97) o odmiennej konstrukcji i uzbrojeniu. Więcej w opracowaniu pt. Schron na armatę przeciwpancerną i ckm – Pak und MG-Schartenstand (1938).
[14] – BAMA, RH 12-20/79 0078, Bestimmungen über die Verwendung der von 30° auf 60° abgeänderten Pakschartenplatten. Anlage zu In Fest III Nr. 3424/39 geh. 20.05.1939 r. Berlin.
[15] – BAMA, RH 11-III/264K, mapa.
[16] – O/S – ze względu na powtarzalność nazw miejscowość w Niemczech określano lokalizację miasta poprzez podanie nazwy rzeki lub regionu (np. Frankfurt nad Odrą, Frankfurt nad Menem). W tym przypadku jest to prowincji – Górny Śląsk ( niem. Oberschlesien). W spisie podano nazwy miejscowości zgodnie ze stanem na styczeń 1939 roku. Część nazw miejscowości zmieniono w 1936 roku.