Czechosłowacki sprzęt optyczny w obiektach Umocnień Granicznych Śląska
Opracował: Tomasz Zamysłowski.


Problemy z dostawami
W 1939 roku niemiecki przemysł, przeciążony zleceniami, nie był w stanie zrealizować terminowo kolejnych zamówień wojska. Zbliżająca się nieuchronnie wojna i związana z nią produkcja uzbrojenia dociążyła nowymi zamówieniami zakłady metalurgiczne. Priorytetowo została potraktowana produkcja broni ofensywnej. Braki dostępności pancerzy, szczególnie odcisną się na nowo budowanych bądź będących w fazie ukończenia obiektach fortyfikacji stałej. Projektanci fortyfikacji zostali postawieni przed problemem braku dostępności elementów pancernych lub znacznie opóźnionych terminach dostaw. Skrajnym przypadkiem zaistniałej sytuacji były budowane latem 1939 Umocnienia Graniczne Śląska (niem. Grenzebefestigung Schlesien).
W 1939 roku opracowano dodatkowe instrukcje [01] wprowadzające szereg zmian oraz uproszczeń konstrukcyjnych w sposobie montażu elementów pancernych, tak aby nieregularne i odległe terminy dostaw pancerzy nie miały wpływu na termin wykonania prac betoniarskich przy obiektach. W przypadku braku dostaw na czas pancerzy pionowych nakazywano wykonanie odpowiednio ukształtowanych otworów technologicznych. Umożliwiały one późniejszy montaż niedostarczonych płyt pancernych po przez ich wsuniecie w przygotowane otwory technologiczne i zabetonowanie.
Zastosowana technologia otworów technologicznych zmniejszała sztywność z powodu braku kotwienia do betonowej konstrukcji schronu, dodatkowo otwór technologiczny zalany świeżym betonem, który nie wiązał się z wylanych wcześniej osłabiał konstrukcję i sprzyjał penetracji przez wodę. Na Górnym Śląsku otwory technologiczne przeznaczone dla płyt 485P2 [02] można zobaczyć w wszystkich obiektach typu Regelbau 116, pancerzy tych nigdy nie osadzono.


Brak pancerzy przeznaczonych dla stanowisk ckm lub obrony zapola rozwiązano przez zastosowanie pancerzy pochodzenia czechosłowackiego.
Instrukcja uwzględniała również późniejszy montaż kopuł. Dla nich również przewidziano otwory technologiczne. Wykonywano je w dwóch wariantach. Pierwszy obejmował montaż kotw na etapie betonowania obiektu. Kotwy w procesie osadzania i cementowania były pozycjonowane za pomocą specjalnego szablonu. Drugi wariant (zalecany jedynie w szczególnych wypadkach z powodu znacznego osłabienia mocowania kopuły) uwzględniał również brak kotw i pozwalał na ich późniejsze zabetonowanie wraz z kopułą. W tym celu na kotwy również przygotowano otwory technologiczne.
Wobec niemożliwości zrealizowania dostawy niemieckich kopuł dla obiektów, których zakończenie budowy przewidziane było na jesień 1939 roku, zdecydowano się na zastosowanie czechosłowackich pancerzy.
Dostawy czechosłowackich kopuł również nie przebiegały terminowo. Dlatego wykorzystano rozwiązania przewidziane w instrukcji. Wykonano otwory technologiczne o konstrukcji wzorowanej na rozwiązaniach przewidzianych dla niemieckich pancerzy, ale o odmiennym kształcie [03] i wymiarach. Problemy dostaw innych elementów wyposażenia rozwiązano poprzez zastosowanie czechosłowackich odpowiedników np.: lekkie drzwi gazoszczelne, kraty przeciw szturmowe. Umożliwiały one późniejszy montaż niedostarczonych płyt pancernych po przez ich wsuniecie w przygotowane otwory technologiczne i zabetonowanie.


Peryskopy vz.37
Autorzy instrukcji przewidzieli również technologie wykonania otworu technologicznego pod późniejszy montaż peryskopów wraz z ich pancerną osłoną. Niemożliwość dostawy sprzętu optycznego wymusiła również zastosowanie czechosłowackiego peryskopu vz.37. Stanowiły podstawowe wyposażenie lekkich schronów vz.37 zwanych potocznie Ropikami a wybudowanych na granicy czechosłowacko – niemieckiej w dużej ilości. Peryskop stosowany był w trzech wersjach wymiarowych, o długości 1250 mm, 1400 mm, 1800 mm w zależności od odporności obiektu W celu wygodniejszego montażu najdłuższy z modeli posiadał odmienna konstrukcję. Składał się z dwóch sekcji. Peryskop w czechosłowackim schronie wsuwany był w rurą osłonową o oznaczeniu DZ-25.



Peryskopy te były początkowo produkowane przez firmę Optikotechna Přerov i przedsiębiorstwo Josef i Jan Fricz a w późniejszym okresie również przez firmę Srb a Štys Praha. Peryskop produkowany przez firmę Optikotechna Přerov oraz Josef i Jan Fricz był pierwszy wzorem peryskopu zastosowanym w lekkich fortyfikacjach vz. 37. Peryskop zapewniał możliwość prowadzenia okrężnej obserwacji. Układ optyczny peryskopu składał się dwóch luster. Konstrukcja peryskopu umożliwiała szybką ich wymianę w przypadku zniszczenia lub uszkodzenia Mocowanie górnego lustra pozwalało na jego obrót względem poziomej osi w zakresie +12/-12 stopni. Zmianę kątowego położenia lustra uzyskano poprzez zastosowanie cięgła i dźwigni mocowanej przy dolnym lustrze. Obserwator obsługujący peryskop mógł za pomocą dźwigni zmienić kąt obserwacji w pionie. Wysuwanie peryskopu odbywało się ręcznie. W pozycji roboczej peryskop blokowany był za pomocą obejmy opasającej pierścień znajdujący się na zakończeniu rury osłonowej peryskopu. Obejma zamocowana została wahliwie do uchwytu, na którym znajdowały się również dwie rękojeści służące do obrotu peryskopu wokół jego pionowej osi. Głowica peryskopu w pozycji spoczynkowej chroniona była za pomocą stalowej osłony w kształcie półkuli.
Konstrukcja peryskopu produkowanego przez firmę Srb a Štys, oparta na rozwiązaniu firmy Optikotechna Přerov, została dostosowana do nowych wymagań. Zmodernizowany przyrząd optyczny wyposażono w dwa górne lustra, zwykłe oraz sferyczne. Lustro sferyczne wklęsłe umożliwiało dwukrotne powiększenie. Górne lustra, zwrócone do siebie, scalone częścią matową, połączone zostały cięgnem z pokrętłem znajdującym się przy dolnym lustrze. Za pomocą pokrętła, podobnie jak w wcześniejszym modelu, można było zmieniać kąt obserwacji w płaszczyźnie pionowej. Obrót pokrętła o 180 stopni umożliwiał zmienię zwykłego lustra na sferyczne. Pokrętło pomalowane było z jednej strony na czerwono i zielono. Położenie pomalowanej części pokrętła pozwalało obserwatorowi zidentyfikować typ lustra zastosowanego do obserwacji.
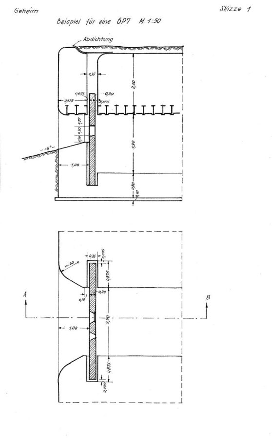
Standardowe obiekty typu Regelbau 116b i Regelbau 116a wznoszono w klasie odporności B neu. Grubość żelbetowego stropu powinna wymościć 2,00 m. W przypadku obiektów Umocnień Granicznych Śląska pomieszczenie obserwatora w Regelbau 112b posiada wysokość 3,10 m [04], zamiast standardowej 2,10 m. Strop nad pomieszczeniem obserwatora ma jedynie 1 m grubości. W celu wykorzystania czechosłowackiego peryskopu w pomieszczeniu obserwatora w obiektach Regelbau 116b [05] zabetonowano oryginała rurę DZ-25. Na powieszeni stropu wykonano zgodnie z praktyką betonową nadlewkę o grubości 0,20 m [06]. Jej zadaniem było wynieść głowice peryskopu po nad wieszania warstwę ziemi i darni oraz lepsze zabezpieczenie rury osłonowej przed ostrzałem. Jedyną zmianą jaką wprowadzono było wylanie jej nad cała powierzchnią pomieszczenia obserwatora. Miało to na celu doraźnie pogrubienie osłabionego stropu w tym miejscu. Uzyskana w wyniku zmian grubość stropu umożliwiała zastosowanie czechosłowackiego peryskopu w wersji o długości równej 1,80 m.
Wybudowane dwa obiekty Regelbau 112b, o lokalizacji w pobliżu miejscowości Pilchowice (Bilchengrund O/S) i Nieborowice (Neuborendorf O/S), wyposażono w czechosłowackie peryskopy. Na pozostałych odcinkach Umocnień Granicznych Śląska wzniesiono obiekty typu Regelbau 116a, które miały posiadać kopuły.
Wprowadzone zmiany, obniżające odporność obiektu na ostrzał zostały zauważone. W sprawozdaniu z 17 maja 1939 dotyczącego odcinka Nieborowice – Bojków (Neuborendorf–Schönwalde) raportowano, że prowadzenie obserwacji w Regelbau 116b jest możliwe jedynie za pomocą peryskopu. Dlatego też należy rozważyć możliwość zastąpienia obiektów Regelbau 116b typem Regelbau 116a [07], który zamiast stanowiska obserwacyjnego z peryskopem posiada kopułę obserwacyjną 89P9 [08]. Wzorem pozostałych schronów budowanych na terenie Górnego Śląska – Regelbau 97 [09] ,106a ,107a, 111a miano zastosować czechosłowackie kopuły typu AJ/N. Takie rozwiązanie podnosiło wartość bojową obiektu i umożliwiało obserwację za pomocą peryskopu będącego na wyposażeniu kopuły oraz pozwalało na bezpośrednią obronę obiektu od czoła za pomocą stanowiska rkm-u w kopule [10] dodatkowo eliminowało zmianę grubości stropu.

Podczas budowy obiektu nie uniknięto kolejnych błędów, umieszczając rury głosowe na standardowej wysokości [11]. Ich wykorzystanie przy jedno osobowej obsłudze w czasie prowadzonej obserwacji przez peryskop z powodu znaczne różnicy wysokości było niemożliwe. Nie przewidziano również żadnego stałego pomostu dla obsługi peryskopu. Dolny wizjer peryskopu znajdował się na znacznej wysokości od poziomu posadzki, z której praktycznie był niedostępny.


Zbliżająca się wojna
Ponieważ dostawy zastępczych czechosłowackich dzwonów AN/J również się opóźniały. Zbliżający się konflikt wymusił na budowniczych doraźnie przygotowanie obiektów do działań wojennych.
W przypadku braku dostawy przewidzianych do osadzenia kopuł, wspomniana wcześniej instrukcja przewidywała zakrycie wykonanych otworów technologicznych drewnianymi pokrywami, dodatkowo pokrytych papą w celu ochrony przed warunkami atmosferycznymi. W przypadku możliwości bezpośredniego zagrożenia ze strony wroga instrukcja nakazywała wykonanie betonowego korka zamykającego pusty szyb kopuły. Oba przedstawione w instrukcji rozwiązania przewidywały pozostawienie otworu na peryskop. Prawdopodobnie planowano wykorzystanie tego samego typu peryskopu. W betonowych korkach, zakrywających puste szyby kopuł, pozostawiono centralnie umieszczone otwory lub osadzono stalową rurę o średnicy 100 mm. Odpowiada ona wielkością rurze osłonowej przewidzianej dla peryskopu vz.37 w czechosłowackiej fortyfikacji. W części obiektów na Górnym Śląsku zastosowano drugie rozwiązanie. Spowodowane o było najprawdopodobniej tym, że na cześć obiektów miały zostać dostarczone kopuły lub nie zdążono wykonać wszystkich betonowych korków przed wybuchem wojny.

Prawdopodobnie w tym samym okresie puste od czoła miejsca dla niemieckich płyt 485P2 w obiektach Regelbau 116 zamurowano pozostawiając prowizoryczną strzelnice dla broni ręcznej i staranie otynkowano tak aby dla obserwatora z zewnątrz sprawiał wrażenie betonowej części ściany obiektu. W obiektach Regelbau 116b zamontowano peryskopy o czym świadczy zachowany destrukt jednego z nich w obiekcie zlokalizowanych w Pilichowicach. Obiekty nie zostały uzbrojone. W piśmie od dowództwa 1 Armii do komendantury umocnień Opole czytamy że wniosek o dostawę 315 czechosłowacki karabinów maszynowych może być złożony na dzień 10 września 1939 r. [12].
Wykorzystanie peryskopu vz.37 na innych liniach umocnień
Montaż czechosłowackich peryskopów przeprowadzono również na innych liniach niemieckich umocnień. Fakt ten potwierdzają zachowane archiwalne fotografie i plany konstrukcyjne obiektów. Stosowano je z powodzeniem w obiektach Wału zachodniego. Peryskop mocowany był do tylnej ściany obiektu a stanowisko obserwatora mieściło się na zewnętrznym pomoście. Ewenementem było zaprojektowanie schronu biernego o oznaczeniu roboczym 870 B2 „f” posiadający również peryskop vz.37 jako środek przeznaczony do obserwacji terenu. Na norweskiej części Wału Atlantyckiego zastosowano je w schronach zbudowanych na segmentach blachy falistej.

Podsumowanie
Na podstawie informacji zawartych w dostępnych dokumentach można stwierdzić, że mitem jest stwierdzenie o idealnym przygotowaniu III Rzeszy do wojny. Kilka miesięcy przed jej wybuchem niemiecka machina wojenna zmagała się z poważnymi problemami, które pogłębiały się w kolejnych latach. Jednocześnie należy docenić elastyczności, pragmatyzm i innowacyjność oficerów wojsk inżynieryjnych działających pod presją czasu. Potrafili oni w kreatywny sposób adaptować plany do zmieniającej się rzeczywistości, wykorzystując zdobycze wojenne. To właśnie ta zdolność do improwizacji, a nie nieograniczone zasoby, była jedną z kluczowych cech Wehrmachtu w początkowym okresie II wojny światowej.
Przypisy:
[01] – Załączniki do instrukcji Sammelmappe verfügungen als ersatz für eine spätere Neubearbeitung der B.st.B Teil 3 Betonbau und Panzerungen oraz Sammelmappe verfügungen als ersatz für eine spätere Neubearbeitung der B.st.B Teil 2 Entwurfsbearbeitung z kwietnia i maja 1939 roku.
[02] – Płyta 485P2 osłaniająca działko 3,7cm Pak 36 jedyny niemiecki pancerz pionowy jakiego montaż przewidziano na obiektach Umocnień Granicznych Śląska.
[03] – Otwory montażowe występują w kształcie okręgu, prostokąta, ośmiokąta. Prawdopodobnie wynikało to z braku instrukcji dla otworu technologicznego przeznaczonego dla montażu czechosłowacki kopuły.
[04] – Pomiary wykonane w obiekcie Regelbau 116b w Pilchowicach.
[05] – Pak- und M.G. Kasematte mit Sehrohr mit Flankierungsanlage (Kazamata dla działka p.panc oraz ckm z peryskopem i pomieszczenie obrony zapola).
[06] – Wykonywano ją zgodnie z instrukcją wokół pancernych osłon peryskopów niemieckiej produkcji.
[07] – Pak- und M.G. Kasematte mit Kleinstglocke mit Flankierungsanlage (Kazamata dla działka p.panc oraz ckm z kopułą i pomieszczenie obrony zapola).
[08] – Kleinstglocken – typoszereg małych kopuł obserwacyjnych itp.
[09] – Regelbau 97 (szerzej o tej nietypowej konstrukcji : Śląskie Panzerwerki – Regelbau Rote 97, Część I – Hauba , Śląskie Panzerwerki – Regelbau Rote 97, Część II – Hauba).
[10] – (CAMO 500_12464_52).
[11] – Standardowy niemieckiej produkcji peryskop posiadał okular obserwacyjny znacznie niżej.
[12] – (CAMO 500_12464_8)
Materiałyźródłowe:
Strony internetowe:
https://www.ropiky.net
https://forum.axishistory.com
Archiwa:
CAMO :
(CAMO 500_12464_52) Akte 52. Befehle, Berichte und Mitteilungen des Heeresgruppenkommandos 1, der Kommandanturen der Befestigungen Oppeln, Glogau, Breslau über die Erkundung der Grenzbezirke.
(CAMO 500_12464_8) Akte 8. Schriftwechsel und Anweisungen des Oberkommandos der Wehrmacht (OKW), des Oberkommandos des Heeres (OKH), des Chefs der Heeresleitung, des Heeresgruppenkommandos 1, des Generalkommandos…
BMMA:
RH19-III/58
RH12-20/79
RH12-20/80
































